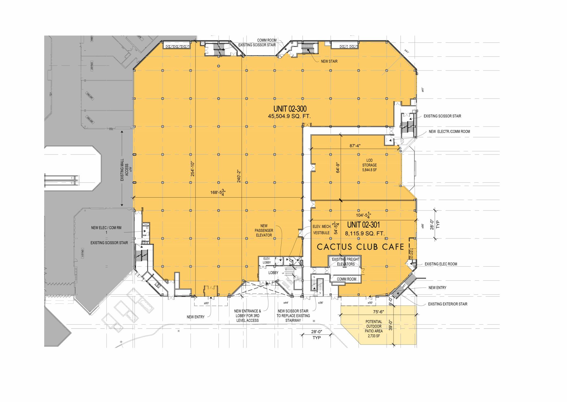
Unit 2-301
Back
Skip to content
Open menu
Previous page
Open navigation
* / *
Next page
Toggle audio
To overview
Open menu
Close sidemenu